top of page
ECO
~ Economic empty nest syndrome ~


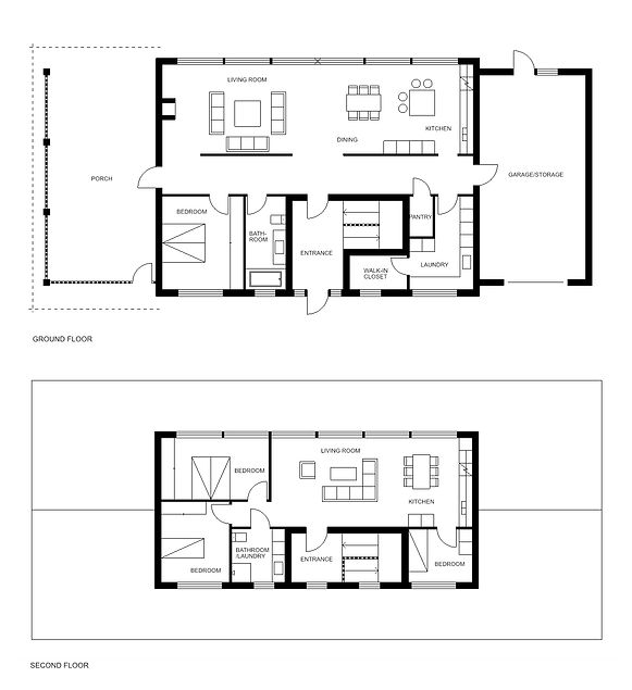
This is a house where you can rent out the second floor when the children move out. The alternative version:

Second floor apartment
Rooms: 4
Living space: 936 ft² | 87 m²
Ground floor apartment
Rooms: 2
Living space: 1484 ft² | 138 m²
bottom of page